

최근 한복, 한글을 비롯하여 우리나라의 전통적인 것들이 모든 분야에서 각광을 받고 있는데, 그 중에서도 우리나라 전통의 가옥이 한옥이 건축분야에서는 새로운 화두로 부각되고 있다. 자연과 인간의 조화 속에서 만들어져 한국인들의 생채리듬에 맞게 만들어졌다는 한옥은 아파트 건축에서부터 개인 주택 및 별장, 펜션 등 건축의 모든 분야에서 활용되고 있다. 그래서인지 몰라도 최근, 자신만의 한옥을 지어보려고 취미로 한옥 건축을 배우는 사람들도 무척 많아지고 있다. 아직까지는 너무 낯설게 느껴지는 한옥의 구조를 알아보자.
일단, 한옥의 구조는 크게 지붕부, 벽체부, 기단부로 나눈다. 지붕부는 말 그대로 지붕이 있는 부분이고, 벽체부는 축부(軸部)라고 하는데, 기단에서 지붕 사이 사람들이 사는 공간이다. 벽체부의 끝 부분은 익공부분이라고 한다.


한옥의 아름다움은 먼저 한옥의 지붕에서 엿볼 수 있다. 그 이유는 멀리 있어도 한옥의 기와지붕만은 한옥의 부드러운 멋을 더하기 때문이다.
이렇게 한옥의 아름다운 더하는 지붕의 형태를 좌우하는 것이 바로 한옥의 마루다. 마루는 지붕의 모양에 따라 차이가 있다. 용마루(종마루)부터 시작하여 내림마루(합각마루), 추녀마루(귀마루), 박공마루 등으로 구분할 수 있다. 그중 제일은 용마루다. 용마루는 두 개의 지붕면이 만나는 부분으로 건물 중앙에 있는 마루다. 한옥의 중심으로 종도리의 상부다. 종도리 위에는 서까래 양쪽으로 쌓아놓고 그 위에는 마루적심을 놓고 지붕 기와가 다 쌓은 다음 마지막으로 쌓는게 용마루다.
다시 지붕 이야기로 돌아와서 대표적인 지붕 양식으로는 맞배지붕, 우진각지붕, 팔작지붕, 솟을지붕, 낮춤지붕, 정자지붕 등이 있다.
그중에서도 맞배지붕, 우진각지붕, 팔작지붕은 전통가옥에서 가장 많이 쓰는 양식이다. 일명, 박공지붕이라고 부르는 맞배지붕은 두 개의 기와 지붕면이 만난 형태이로 구조가 제일 간단하다. 여기서 박공이란 지붕과 지붕이 만나 옆면에 생기는 삼각형 모양을 말한다. 우진각 지붕은 용마루에서 지붕면이 사방으로 비탈져 있는 지붕이다. 따라서, 우진각 지붕은 측면에 삼각형 모양의 박공이 없다. 합각지붕이라고 불리는 팔작지붕은 우진각과 맞배를 합쳐놓은 형태이다. 지붕 위쪽에는 박공이 있어 맞배지붕의 형태가 그 아래부분은 우진각지붕의 형태가 나타난다. 지붕 자체가 화려하고 아름다워 예로부터 격식이 높은 건물인 궁전의 정전, 사찰 대웅전, 사대부 가옥에서 많이 사용하였다.

한옥의 멋을 더하는 다른 하나는 공포다. 한옥건물에서 지붕 처마 끝의 하중을 받치기 위해 기둥머리 같은 데 짜맞추어 댄 나무 부재로 특히 목조 건물로 된 사찰 건물에서 많이 볼 수 있다. 공포는 지붕의 하중을 기둥에 전달하는 기능을 하는데, 주두, 소로, 첨차, 살미 등의 부재로 이루어진다. 그 종류로는 다포계, 주심포계, 익공계 등으로 구분한다.
주심포(柱心包)는 기둥머리 위에만 포가 짜여진 공포 형식이다. 주심포 공포가 쓰인 대표적인 건물로 봉정사 극락전, 부석사 무량수전, 수덕사 대웅전 등이 있다. 다포(多包)는 기둥머리 위와 기둥 사이에 포가 짜여진 공포 형식이다. 다포 형식은 주심포 형식에 비해 화려하고, 익공 형식에 비해 격이 높아 권위 있는 건물에 많이 사용 하였다. 익공(翼工)은 살미가 새 날개 모양의 익공 형태로 만들어진 공포 형식이다. 익공 수와 모양에 따라 하나만 있으면 초익공, 두 개가 있으면 이익공이라고 한다.


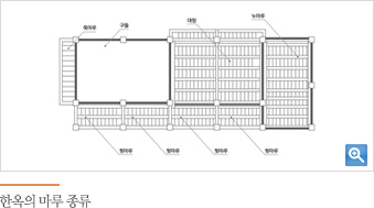
마루는 대청 외에도 그 쓰임새에 따라 대청마루, 툇마루, 쪽마루, 누마루 등으로 나눈다. 툇마루는 건물 앞과 뒤 혹은 옆의 끝 칸에 이동 통로로서 마련된 마루다. 쪽마루는, 건물 밖으로 출입할 때 이용하는 마루로 밖으로 길게 된 널을 대고 그 안에 여러 널을 끼워 넣은 형태다. 누마루는 마루 자체를 높게 만들어 땅의 습기를 피하고 통풍이 잘 되도록 한 누각 형식의 마루다. 일반적으로 양반 가옥의 사랑채의 끝에서 볼 수 있다.

한옥의 실내로 들어가면 가장 먼저 눈에 들어오는 부분이 있다. 그것은 방과 방사이의 열린 공간이 큰 마루라는 뜻을 지닌 대청(大廳)이다. 마루의 대표격인 대청은예로부터 집에 중심부 역할을 담당했다. 안채에는 안대청이 있고 사랑채에는 사랑대청이 있을 정도로 대청은 각 채에 중심부에 위치하였다. 그 구조를 보면 안방과의 건넌방과의 사이에 모두 들어열개로 된 불발기문를 달았고, 안마당에도 들어열개로 된 분합문을 달았다. 그리고, 여름철에는 이것을 모두 집어 올려 들쇠에 매달아 고정시킨다. 대청 바닥은 짧은 널을 가로로, 긴 널을 세로로 제작한다. 우물 정[井]자 모양으로 우물마루(귀틀마루)라고 부른다. 원래 대청을 비롯한 마루들은 우리나라에만 있는 것은 아니었지만, 통풍이 가능하고 외벽이 개방되어 있어 주로 우리나라에서는 남부 지방에서 발달하였다.

마지막으로 한옥의 미를 더하는 것이 창호다. 창호는 말그대로 창(窓)과 호(戶)가 합쳐진 복합어이다. 창의 우리가 일반적으로 알고 있는 창문을 말하고 호는 출입과 관련된 문을 말한다. 물론, 정확히 말하면 원래 호는 문(門)과는 다른 개념이었으나 지금은 통상적으로 같은 의미로 쓰고 있다. 창호의 명칭은 그 디자인에 따라서 맹장지, 불발기, 귀자창, 귀갑창, 띠살창, 완자살창, 빗살창 등으로 불리고, 그 종류만 해도 수 십여 가지에 달한다. 하나의 가옥에도 여러 가지 형태의 창호가 쓰이기도 한다. 일반 초가집보다도 양반집이나 격조 높은 가옥의 경우에 창호의 형태가 더욱 화려해진다.



한옥의 재료는 나무와 돌, 흙이 주를 이룬다. 어디서나 쉽게 구할 수 있는 이러한 재료들에서 한옥의 과학성은 인정받고 있다. 한옥 건축은 아토피를 포함한 여러 가지 질병에서 치료 사례가 알려질 정도에 이르렀다. 심지어 최근에는 직접 자신의 집을 지어보는 스스로 짓는 한옥
도 붐이 일정도다. 이러한 결과는 한옥은 재료에서부터 시작한다. 한옥의 나무와 흙은 습도 조절 능력이 우수한 친환경적인 소재이다. 시멘트가 주성분인 콘크리트 건물은 건물을 쉽게 축조할 수 있다는 건축적 장점이 있지만, 환경호르몬 발생으로 역풍을 맞고 있다. 반면 한옥의 재료들은 천연재료로 환경호르몬 발생이 전혀 없고 습도를 자동조절하며 환기조건이 우수한 ‘자연 공기 청정기’다.

한옥의 특별한 점은 햇빛을 그대로 담아낼 수 있는 구조였다는 것이다. 이러한 집의 구조에서 햇빛을 그대로 담아내는 역할을 담당했던 것이 창호다. 그것은 너무 많은 양이 아니라 꼭 필요한 양만큼 담아내는 구실을 하였다. 더욱 신기한 비밀은 마당은 항상 비워져 있었고, 창호는 마당에서 반사된 햇살까지도 방안으로 고스란히 담아내었다.
또 하나 처마의 높이를 일정 정도로 유지한 여름과 겨울의 집안을 기온을 유지하였다. 한옥은 햇빛과 비를 고려하여 처마의 높이와 각을 유지하였다. 특히, 겨울철 햇살이 방안 깊숙이 들어올 수 있도록 방의 깊이를 적당히 조절하였다.

한옥의 특별한 점은 햇빛을 그대로 담아낼 수 있는 구조였다는 것이다. 이러한 집의 구조에서 햇빛을 그대로 담아내는 역할을 담당했던 것이 창호다. 그것은 너무 많은 양이 아니라 꼭 필요한 양만큼 담아내는 구실을 하였다. 더욱 신기한 비밀은 마당은 항상 비워져 있었고, 창호는 마당에서 반사된 햇살까지도 방안으로 고스란히 담아내었다.
또 하나 처마의 높이를 일정 정도로 유지한 여름과 겨울의 집안을 기온을 유지하였다. 한옥은 햇빛과 비를 고려하여 처마의 높이와 각을 유지하였다. 특히, 겨울철 햇살이 방안 깊숙이 들어올 수 있도록 방의 깊이를 적당히 조절하였다.


한옥의 특별한 점은 햇빛을 그대로 담아낼 수 있는 구조였다는 것이다. 이러한 집의 구조에서 햇빛을 그대로 담아내는 역할을 담당했던 것이 창호다. 그것은 너무 많은 양이 아니라 꼭 필요한 양만큼 담아내는 구실을 하였다. 더욱 신기한 비밀은 마당은 항상 비워져 있었고, 창호는 마당에서 반사된 햇살까지도 방안으로 고스란히 담아내었다.
또 하나 처마의 높이를 일정 정도로 유지한 여름과 겨울의 집안을 기온을 유지하였다. 한옥은 햇빛과 비를 고려하여 처마의 높이와 각을 유지하였다. 특히, 겨울철 햇살이 방안 깊숙이 들어올 수 있도록 방의 깊이를 적당히 조절하였다.


예술과 한옥이 만나면 어떠한 모습일까? 서울시에서는 한옥에서 서울의 색을 뽑아내었다. 물론 한옥뿐만 아니라 서울을 상징하는 역사와 환경을 배경으로 여러 색을 뽑아내었다. 그래서 붙여진 이름이 ‘서울색(Seoul Colors)’이다. 서울색은 서울의 대표성이 담긴 요소를 찾아 9,800여 컷의 현장측색 이미지를 추출하고, 색채현황에 대한 연구조사 후, 시민들의 앙케이트 조사와 전문가 자문을 통한 여론수렴과정을 거쳐 선정하였다.
서울색은 서울권장색 600개와 서울현상색 250개로 이루어져 있는데, 250개의 서울현상색 중에서 50개를 뽑아 서울지역색이라 하였고, 그 중에서 또다시 10개를 뽑아 서울대표색이라고 하였다. 단청빨간색, 기와진회색, 돌담회색, 삼베연미색, 한강은백색, 남산초록색, 서울하늘색, 은행노랑색, 고궁갈색, 꽃담황토색 등 총 열 개다. 이 서울대표색 중 한옥에서 뽑아낸 것만해도 단청빨간색, 기와진회색, 돌담회색, 꽃담황토색 등 네 개나 된다. 그리고, 서울대표색 중 단청빨간색을 서울상징색으로, 한강은백색을 서울기조색으로 선정하였다.
이미 세계 여러 선진도시들은 도시 고유의 특성을 표현하는 색이 있어 도시경쟁력 강화에 기여하였다.베를린, 파리, 시드니, 요코하마 등의 도시들도 도시 고유의 색을 선정하여 도시경쟁력 강화에 활용하고 있다. 서울시 역시 이러한 서울색을 도시 경쟁력 강화 활용하기 위한 방법으로 여의도 마포대교 남단 아래 공간을 '서울색 공원(Seoul Color Park)'으로 조성하였다. 더 나아가서 서울색을 직접 체험할 수 있는 기회를 확대하고 활용할 수 있도록 크레용, 색종이, 아크릴물감, 포스터컬러 등 ‘서울색 미술용품’도 출시하였다.



현대인들의 주거지하면 단연 아파트를 손꼽는다. 인구가 많고, 국토 면적이 좁은 우리나라의 도시에서 한정된 토지를 이용하기에 가장 훌륭한 주거 방식이다. 지금까지 아파트의 건축과 구조는 독창적이라고는 하지만 서구적 형태의 구조를 따라왔던 것이 사실이다.
최근에는 한옥의 가치가 새롭게 부각되면서 아파트에서도 이러한 한옥의 모습을 담아내고자 하는 움직임이 일어나고 있다. 단순히 아파트 외관이나 조경뿐만 아니라 실내 구조까지도 한옥을 그대로 담아내고 있다. 산업화 사회에 들어오면서 한옥에 대한 인식이 소득 수준이 낮고 비위생적이라는 인식으로 오랫동안 차별 받아왔다. 하지만, 한옥이 한국 사람들의 신체 및 생활 리듬에 맞도록 만들어진 과학적인 건축물이라는 새로운 연구 결과들이 사람들의 인식을 바꾸어 놓았다.
이제는 단순히 한지로 창과 문을 만드는 차원에서 벗어나 한옥에서 사용하는 나무와 황토를 사용하고 거실을 대청 마루 형태로, 심지어 마당이라는 공간까지 마련하기까지 이르렀다. 그리고 일정부분 한옥에서 부족했던 부분들을 새롭게 고쳐 사람들의 눈길을 끌고 있다.
토지주택공사에서 한옥의 형태를 적용한 아파트 디자인을 선보였다. 전체 외관에서도 담장부터 지붕까지 한옥의 형태를 그대로 담아내었다. 그리고 저층부의 아파트 정문에서는 성곽에서 보던 큰 대문의 형태, 실내는 안마당을 도입한 형태로 디자인을 만들어내었다.
조금 더 나아가 한옥의 평면을 사랑방형 · 한실형 · 안마당형 · 다실형 등 4개 타입으로 개발하기에 이르렀다. 사랑방형은 손님 응대와 가족취미 공간으로 사용할 수 있고 한실형은 거실과 주침실의 매개공간으로 활용할 수 있다. 다실형은 차를 마시며 담소를 나눌 수 있는 공간이며 안마당형은 현관을 확장해 마당의 개념을 도입한 것이다.